TUCHENG

家泰嘉潤丰藏

成交價
每坪約
0

-

0
萬起
總價
0
萬起
買兩房
訂簽金約
0
萬起

特別企劃

家泰嘉潤丰藏

丰藏地圖

核心特色

土城暫緩重劃區,正金城路核心,雙捷雙商圈
未來金城交流道、萬大線LG10站約350公尺

家泰嘉潤丰藏 預約賞屋

房型價位

兩房房型-約

20-25坪

1516萬

三房房型-約

31-33坪

2061萬

影音&相簿特輯

Videos & Photos

建案詳情

Info

建設公司

家泰建設開發股份有限公司、嘉潤建設開發股份有限公司

營造公司

青鈿營造股份有限公司

總戶數

144戶住家、8戶店面

樓層規劃

1棟,地上21層,地下4層

基地位置

新北市土城區金城路二段、青仁路交叉路口

基地坪數

720坪

類型

預售屋

結構

RC鋼筋混凝土

公設比

約34.97%

梯戶規劃

標準層,一層7-8戶,2-3部電梯

接待中心

新北市土城區龍山二街87號旁

代銷

新理想行銷-涵美學廣告股份有限公司

付款內容

Payment

表格/MYDAChi 秘密客獨家揭露
房型訂金與簽約金開工款期款房貸交屋款合計
付款資訊10%-
2%
-
13%
-
70%
-
5%
100%
訂金10萬10% - 訂金
兩房合計約 152 萬起約 30 萬起約 197 萬起貸75% 約 1137 萬起,月付4.2萬起1516萬起
10萬約142萬起約 1061 萬起約 76 萬起
三房合計約 206 萬起約 41 萬起約 268 萬起貸75% 約 1546 萬起,月付5.8萬起2061萬起
10萬約196萬起約 1443 萬起約 103 萬起
*付款內容可能因銷售情況有所調整異動,此表僅供參考,請依現場提供資訊為準,實際付款方式,仍取決於個人信用與房屋條件狀況而定。

建案總評分

Overview

特別企劃

地段稀有性

★★★★✰

土城暫緩重劃區,正金城路核心,雙商圈機能,未來萬大線LG10站。

規劃舒適度

★★★★☆

基地雙面臨路退縮,日系精品建材配備,五大國家級認證標章。

房價性價比

★★★★☆

暫緩線上稀缺新案,價格符合區域行情,細膩質感規劃、建築標章加乘。

專家解析

Expert

土城暫緩重劃區 稀缺新案
未來萬大線約350公尺

特別企劃

家泰嘉潤丰藏優點總結

• 土城暫緩重劃區稀缺新案,正金城路精華地段,享重劃區街廓和便利機能。
• 周邊生活機能佳,步行可達裕民、清水雙商圈,餐飲小吃林立日常採買無虞;斬龍山文化遺址公園距離僅約500公尺,漫步享公園盎然綠意。
• 長庚醫療體系市立土城醫院,區域大型專科醫療院所,距基地約800公尺。
• 未來金城交流道約350公尺,串連國道三號提升交通效率,預計2027年完工通車。
• 未來萬大線LG10清水站約350公尺,可快速轉乘捷運中和新蘆線,最快預計2031年全線完工。
• 日系美學公設,融合溫潤自然語彙,斜屋頂咖啡吧、戶外公設空間是亮點。
• 日系精品建材、10年防水保固、停車場採匯流排,保障用電安全性。
• 五大國家級標章認證,耐震標章、智慧建築標章、綠建築標章、住宅性能評估無障礙1級認證、WELL WFR健康住宅。

 

 

家泰嘉潤丰藏缺點總結

• 金城路萬大線施工期間,影響金城路車行效率,需待完工後改善。
• 捷運板南線海山站、土城站,步行較考驗腳程,有車客群會更為合適。

 

 

土城開發成熟重劃區,生活機能便利完善,多項重大建設題材,增值潛力可期

家泰嘉潤丰藏位在新北市土城區金城路二段與青仁路交叉口,基地雙面臨路正對重要幹道金城路,近裕民商圈和清水商圈,地段優勢佳,同時享有重劃區舒適街廓與雙商圈便利機能是此案優勢,是近期土城暫緩重劃區內少見的預售新案,具稀缺價值

 

暫緩重劃區目前為開發中後期,區域內多嶄新落成的社區大樓,棋盤式街道設計,鄰路退縮規劃開放綠化空間,還有佔地千坪的斬龍山文化遺址公園,整體綠覆率高、純住氛圍濃厚,環境宜居舒適,受到不少追求生活品質的客群喜愛。

 

金城路以北有裕民商圈和日月光廣場,南側則是家樂福清水商圈和土城醫院,從日常採買、逛街購物、休閒娛樂到醫療資源都相當完備,是目前土城三大重劃區中,開發相對成熟的區域

 

區域內更規劃有多項重大建設,土城司法園區將結合周邊司法行政機關,打造全台首座司法專用園區,園區佔地約84.07公頃,規劃有住宅、商業、司法用地和公園綠地,結合休憩與司法機關,提供友善公共空間,翻轉土城的城市新面貌,提升發展機會。

 

交通機能方面,未來國道三號至金城路將會增設「金城交流道」,預計2027年完工,完工後可有效紓困土城及中和龐大的交通量,解決目前的塞車困境,提升開車族的交通效率;除原有板南線海山站及土城站,未來還有萬大線二期行徑,預計最快2031年完工,未來增值潛力可期。

 

暫緩二期也在2025年5月通過都審,未來可直接串連土城司法園區和金城交流道,規劃有公共托育、社會福利、學校用地和社會住宅等,全方面完善區域休憩、交通和就學的核心機能。

 

優選日系精品建材配備,格局多以自住規劃為主,五大國家級標章認證

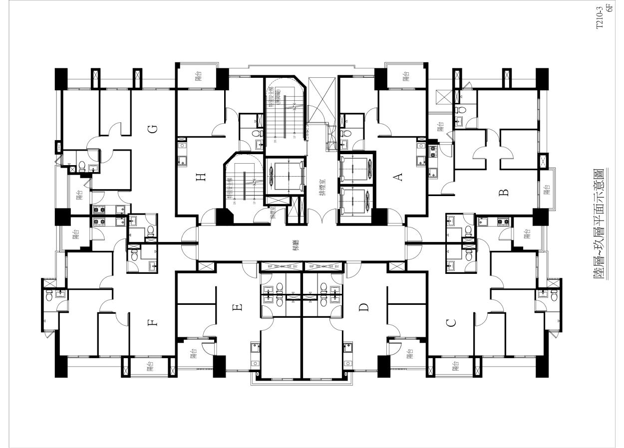
家泰嘉潤丰藏基地約720坪,預計興建地上19層、地下4層樓建築,共144戶住家、8戶店面,坪數規劃2房約20坪、2+1房約25坪、3房約31-33坪,每層八戶三梯,預計2030年完工。

 

格局規劃多以自住為主,三房公私領域分明,明廳明房,封閉式廚房明火配置,主臥衛浴開窗是加分項;25坪兩房採三分法設計,無走道空間浪費,兩房雙衛浴日常使用便利,+1空間可彈性規劃。其中20坪兩房空間略小,日常動線較不流暢,但小坪數低總價優勢彰顯,適合預算相對受限,但想住進土城暫緩精華地段的首購族。

 

此案優選日系精品建材配備,林內三機(兩房IH單口、三房明火雙口)、TOTO衛浴、INAX龍頭面盆、Panasonic四合一暖風機、YKK氣密窗搭配5+5膠合玻璃、GreenWeb防霾紗窗、日本永大木門…等,其中配置全戶淨水、Panasonic全熱交換器和日立永大電梯是加分項。此案更是土城區域目前線上獲得耐震標章、智慧建築標章、綠建築標章、住宅性能評估無障礙1級認證、WELL WFR健康住宅,共五大國家級標章認證的個案

 

家泰嘉潤丰藏開價約76-88萬/坪,符合目前區域行情,是暫緩重劃區線上的罕見新案,具稀缺價值,正金城路核心地段,周邊生活機能成熟,街廓寬敞舒適,整體規劃以自住為核心,宜居戶數、精選日系質感建材配備,擁有五大國家級標章認證更是此案加分項,適合追求居住品質和生活便利性的在地自住和換屋族。

 

預約賞屋

 

土城暫緩重劃區發展成熟
街廓舒適宜居,享雙商圈便利機能
自住規劃為核心
優選日系精品建材配備

公設空間勾勒日系美學
建材兼具設計質感與實用性

特別企劃

家泰嘉潤丰藏,讓我印象深刻的不外乎就兩點,建案規劃和設計美感,融合日系的簡約美學和職人工藝,把細膩和用心藏在建案每寸的空間之中,是我喜歡的風格。

 

別緻日系美學的公設空間,斜屋頂勾勒獨特藝術感,細膩暖心規劃亮點滿滿 

此案公設由工一設計規劃,進門挑高七米接待大廳,以簡潔敞亮的自然色系搭配溫潤的淺褐色木紋,天花板柔和的弧線呈現出空間別緻的設計感,其中外送放置區的貼心規劃滿足了大眾當今的生活習慣,也能避免外送餐點堆放的雜亂感。

 

休閒咖啡吧是我偏愛的one pick,室內以斜屋頂線條勾勒出日系的獨有美學,陽光從大面玻璃窗灑落,上方格柵讓光影變化更有層次與藝術感,柔和又溫暖。不同空間場域以木格柵輕盈劃分、自由切換,讓人有種不張揚不喧鬧,日常被好好安放的踏實感。

 

戶外公共空間的巧思更讓我眼睛為之一亮,大廳落地窗延伸戶外的流瀑水景,相比將中庭花園一覽無遺的設計,透過石材圍籬牆面切割空間,在有限空間創造堆疊出不同的氛圍感。

 

點睛之筆是通往中庭花園二樓的戶外兒童遊戲區與階梯秘境,一側是樓梯另一側是溜滑梯,小朋友肯定超愛,玩樂的同時大人就到二樓露天花園休息放鬆,用自然語彙慢慢訴說生活的美好與寧靜,不難看出丰藏在規劃中注入的細膩與暖心。

 

延續日系品牌風格,兼具設計質感與機能實用性,建材配備有感升級

丰藏延續建案日系風格調性,建材配備多採兼具設計質感和高機能性的日系品牌,像是Panasonic健康櫥櫃有米白和淺咖啡兩色自由挑選,使用日本JAS、JIS認證的低甲醛板材,醫療級矽膠跟封版技術,可防止蟑螂跑到櫃內,上方櫥櫃的防震扣環,在地震來臨會自動啟用安全門扣,避免物品掉落的危險。

 

衛浴在主臥配置TOTO全自動馬桶,客用衛浴升級免治馬桶,INAX平面式龍頭的白色簡約搭配我也蠻喜歡的,不只好看還多了放置空間,實用又漂亮。氣密窗採高規品牌YKK搭配5+5膠合玻璃、GreenWeb防霾紗窗,可有效隔絕噪音金城路上車水馬龍的吵雜聲及落塵,另贈Panasonic全熱交換器,開窗不開窗都有能有好的空氣對流和品質,配備規劃讓人都蠻有感的。

 

看好區域發展,統一集團打造複合式商場,萬大線加速雙北交通效率和便利性

暫緩便利豐富的生活機能,是現階段無法被輕易取代的優點,周邊還有永寧和頂埔,中工宇宙AI雲園區和八大都更案蓄勢待發,區域沿線重大建設題材不少,完工後會帶動就業人口流入,我個人蠻看好此區未來發展。

 

知名企業統一集團也將整合旗下資源,規劃佔地500坪的複合式商場,預計2026年底正式營運,未來會引進旗下品牌 7-11、康是美、星巴克、酷聖石及BEING sport等品牌進駐,結合商場與辦公空間,提供更加完善的商業機能,

 

區域內有土城司法園區、金城交流道、萬大線、三鶯線等重大建設,其中我個人最期待的是萬大線二期加乘的交通便利性,現階段板南線可串連至新北板橋和北市精華商業區,而萬大線則可加速新北行政區間的通勤效率,丰藏距萬大線LG10站僅約350米,未來可轉乘環狀線,也可到中正紀念堂轉乘淡水信義和松山新店線,對習慣捷運通勤的人有不錯利多,近捷運相對也有不錯保值性。

 

家泰嘉潤丰藏 預約賞屋

 

別緻日系美學的公設空間
勾勒獨特別緻的藝術氣息
未來萬大線LG10站
提升雙北通勤效率及交通便利

舒適氛圍&完善機能
五大國家級標章認證

特別企劃

家泰嘉潤丰藏是務實追求實用性,且對小細節把控嚴謹的客群,會格外喜歡的建案。

 

科技智能、永續發展、節能減碳都是當今趨勢,要方方面面提升住戶居住品質,從建案初步規劃就不能馬虎,不少建設公司都有相關配置,不過特別申請標章認證,不只是更多費用的產生,也代表建設公司有足夠信心與對建案品控的嚴格要求,能透過公正第三方來檢視驗證,這點讓我感覺很安心也較有保障。

 

建築耐震標章擁有高含金量價值,設計規劃施工層層把關,施工品質有保障

家泰嘉潤丰藏取得的五大項國家級標章認證中,主要環繞在每天離不開的陽光、空氣、水,住戶的使用效率和生活品質因社區採用智慧系統也大大提升;其中最值得一提,絕對是高含金量的是「耐震標章」,需透過設計和施工兩階段的審查,因過程相對繁瑣,取得該標章的建案較少見有一定價值。

 

台灣的建築耐震標章取得並不是特別容易,建案在設計階段就需導入高標準耐震設計,從材料品管、施工細節都有嚴格要求,還需透過第三方專業機構進行結構認證、由技師駐點監督施工,以確保各項環節都符合設計標準。

 

台大地震研究中心會組成耐震標章審查小組,不定期在施工時進行現場查證,這不只考驗建設公司,對營造廠的挑選也尤為重要,為確保穩定的施工品質,工時會拉長造價成本更會增加,而這些額外花費只有少數建設公司願意負擔。

 

此案結構設計由擁有豐富經驗的張盈智技師、與參與過陶朱隱園和眾多公共建設的宋俊鴻土木技師進行耐震監督,從結構安全到施工品質都層層把關,重視細節、在看不到的地方投入心力,對我而言真的很加分。

 

社區內部其餘規劃,我印象比較深刻的是停車場硬體設備採電力匯流排,相比傳統拉線預留電動車樁,未來安裝只要插入開關箱就可把電源拉到車位附近,可以節省空間、快速更改負載容量,耐高溫耐高壓的特性能也有效提升用電安全。

 

滿足自住重視的環境、機能和交通;長庚醫療體系「市立土城醫院」資源完善

丰藏具備的地段優勢,我認為基本無可挑剔,有重劃區舒適漂亮的街廓,鄰近發展完善的舊市區,周邊生活機能都已相當成熟。

 

基地對面就是藏壽司和Uniqlo,裕民商圈過馬路就到,步行到家樂福清水商圈約10分鐘,日常採買購物都方便。家裡有小朋友,斬龍山遺址文化公園平時絕對不會少去,公園內有多項遊樂設施,夏天還可以玩水,步行僅約8分,假日放風不擔心沒有好去處。

 

最重要的是有「新北市立土城醫院」健全豐沛的醫療資源,此案距土城醫院約800公尺,步行約11分、開車約4分,採BOT方式由長庚醫療團隊興建提供醫療服務,以醫學中心等級規劃經營,整合婦幼、老人和急重症等各項專科,是區域內極其重要的醫療機構,對在地居民來說是不可或缺的重要角色;雖然大型醫療院所難避免救護車的噪音疑慮,但對我來說整體還是利大於弊。

 

平時開車出行多,聯外道路很重要,現在主要仰賴國道三號和銜接國一的台65快速道路,未來增設的金城交流道距丰藏僅約350公尺,是我認為是能改善土城壅塞交通最有幫助的交通建設;至於大眾運輸方面,我更看中海山站和土城站,燙金板南線可以直達雙北核心商業區的價值,雖然步行考驗腳程,但平時開車載家人到捷運站也不麻煩,有取捨本就正常,符合自己的需求比什麼都重要。

 

家泰嘉潤丰藏 預約賞屋

 

發佈留言

發佈留言必須填寫的電子郵件地址不會公開。 必填欄位標示為 *

看過本案的人也喜歡...

TOP
資訊目錄
  • 分享至
Share

編輯精選

特別企劃

請在這裡輸入標題